Description

Twee-onder-een-kapwoning in het geliefde Villapark
Aan een rustige, groene laan in het karakteristieke Villapark van Eindhoven staat deze royale twee-onder-een-kapwoning met eigen oprit. Een huis waar een gezin zich direct thuis voelt. Met vier slaapkamers, twee badkamers, een speelkamer, een zonnige woonkamer en een zonnige achtertuin is er ruimte voor iedereen. Authentieke details zoals glas-in-loodramen en houten balken combineren hier met moderne voorzieningen, zodat wonen comfortabel en praktisch is. De begane grond is voorzien van vloerverwarming, extra isolatie en een recent vernieuwde cv-installatie.

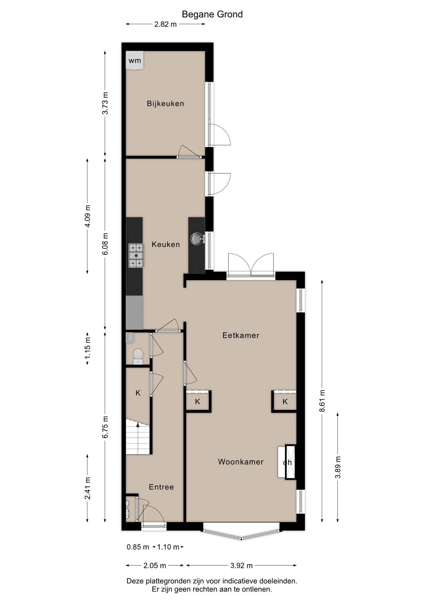
BEGANE GROND
ENTREE
Bij binnenkomst voelt u meteen de ruimte en het licht. De hal biedt toegang tot de woonkamer, keuken, toilet en trap naar boven. De tegelvloer heeft vloerverwarming en extra isolatie, en de glas-in-loodramen boven de voordeur geven een warme, karakteristieke uitstraling.

WOONKAMER
De woonkamer is licht en ruim, met uitzicht op de voor- en achtertuin. Hoge plafonds, grote ramen en een houten vloer zorgen voor een fijne, gezellige sfeer. De gashaard brengt extra warmte en gezelligheid op koude dagen, en de inbouwkasten zorgen voor voldoende opbergruimte. Via de openslaande deuren loopt u zo de tuin in, ideaal voor kinderen om buiten te spelen of voor een gezellig tuinfeest.

KEUKEN
De gezellige leefkeuken is praktisch en compleet ingericht met een granieten werkblad, kookplaat, oven, afzuigkap, koelkast en vaatwasser. Vanuit de keuken loopt u via een deur direct de tuin in. Zo blijft koken en tuinieren of buiten spelen van de kinderen perfect te combineren.

SPEELKAMER
Achter de keuken ligt een speelkamer, waar kinderen kunnen spelen of huiswerk maken. Hier bevinden zich ook de wasmachine- en drogeraansluitingen. De ruimte heeft een eigen deur naar de tuin.

KELDERKAST
Ideaal voor het opbergen van voorraad en/of speelgoed.

TOILET
Het volledig betegelde toilet is modern en netjes afgewerkt.

EERSTE VERDIEPING
OVERLOOP
De eerste verdieping voelt warm en ruim dankzij de mozaïek parketvloer en hoge plafonds. Vanaf hier heeft u toegang tot alle slaapkamers en de badkamer.

SLAAPKAMER 1
De ruime slaapkamer aan de achterzijde is ideaal voor de ouders. Met ramen aan twee zijden en ingebouwde kasten is er veel licht en opbergruimte. Een plek waar u rustig kunt slapen en ontspannen na een drukke dag.

SLAAPKAMER 2 & 3
Aan de voorzijde liggen twee slaapkamers. Beide kamers zijn licht, ruim en overzichtelijk, zodat ze ideaal zijn om te spelen, huiswerk te maken of te studeren. Met inbouwkasten is er genoeg plek voor speelgoed, boeken en kleding.

BADKAMER
De badkamer is volledig betegeld en voorzien van een ligbad, aparte douche, toilet en wastafelmeubel. Gezinnen zullen de ruimte waarderen voor zowel ochtendroutines als ontspanning in bad. Via een deur is toegang tot het platte dak voor extra ventilatie of het neerzetten van plantenbakken.

TWEEDE VERDIEPING
VOORZOLDER
De voorzolder biedt veel bergruimte en toegang tot de vierde slaapkamer en tweede badkamer. Handig voor gezinnen die extra opbergruimte nodig hebben voor seizoensspullen, speelgoed of sportmaterialen.

SLAAPKAMER 4
De zolderkamer is groot en licht dankzij ramen aan drie zijden. De zichtbare houten balken geven karakter, en de ruimte is ideaal als tienerkamer, logeerkamer of speelkamer voor oudere kinderen. Onder de schuinte is extra bergruimte voor speelgoed, kleding of hobbyspullen.

BADKAMER 2
Deze recent vernieuwde badkamer (2024) met douche, wastafelmeubel en opbergkasten. Het kleine dakkapel zorgt voor licht en ventilatie, zodat iedereen comfortabel gebruik kan maken van de badkamer, ook tijdens drukke ochtenden.

BUITENRUIMTE
VOORTUIN EN OPRIT
De voortuin is fraai aangelegd met groenblijvende planten en hagen. De eigen oprit biedt parkeerruimte voor een auto en er is een achterom, handig voor fietsen, kliko’s of tuingereedschap.

ACHTERTUIN
De achtertuin ligt op het zuidoosten en is een echte speel- en ontspanningsplek. Er is een ruim terras, kunstgras, vaste beplanting en een buitenkraan. Hier kunnen kinderen veilig spelen en kunnen ouders genieten van gezellige buitenmomenten.

OMGEVING
Villapark is een van de mooiste woonwijken van Eindhoven. Brede lanen, volwassen groen en statige huizen creëren een rustige en veilige omgeving. Hier woont u op loopafstand van het centrum, scholen, kinderopvang, sportverenigingen en eenenorm speelveld. Het NS-station en stadsparken zoals het Wasven liggen dichtbij, en met de auto bent u snel op de uitvalswegen richting Den Bosch, Tilburg en de A2. Voor gezinnen biedt deze wijk de perfecte combinatie van rust, ruimte en nabijheid van voorzieningen.

BELANGRIJKSTE KENMERKEN

Twee-onder-een-kapwoning in het Villapark van Eindhoven
Eigen oprit en achterom
Vier slaapkamers en twee badkamers
Recent vernieuwde badkamer op zolder (2024)
Cv-installatie uit 2023
Vloerverwarming en extra vloerisolatie op de begane grond
Hoge plafonds en veel lichtinval
Tuin op het zuidoosten, perfect voor kinderen en gezin

Do you have any questions, or would you like to take a look inside?

Contact us without obligation
+31-40-2444073
Share this property

Features

Acceptance

Purchase price
€885,000.00
Status
Available
Acceptance
In consultation

Construction

House subtype
Semi-detached house
Construction type
Existing construction
Year built
1919
Interior maintenance rating
Fair to good
Exterior maintenance rating
Good
Location
In residential area

Layout

Living area
150 m²
Plot area
188 m²
Volume
563 m³
Rooms
6
Bedrooms
4
Bathrooms
2

Energy

Energy class
E
Insulation
Floor insulation, Double glazing
Heating
Central heating boiler

Outdoor space

Garden types
Backyard, Front yard, Side yard

Garage

Garage type
No garage

Video's

Floor plans

Map 1
Map 2
Map 3

Meer informatie

Wilt u meer informatie over Eksterlaan 15, EINDHOVEN? Laat dan hier uw email adres achter zodat wij u kunnen informeren.

* We respect your privacy and only send relevant information.