Omschrijving

Wonen aan de Hazenloop. Een groen uniek plekje aan de rand van de stad. 

Sommige huizen bieden méér dan alleen een dak boven je hoofd. Dit is er zo één. Aan de rustige Hazenloop, op een bijzondere plek in het gewilde Schuttersbosch, vind je een prachtig woning waarin modern comfort en natuurlijke materialen perfect samenkomen. Je woont hier aan de rand van de Stratumse Heide, met het Brabants Landschap om de hoek. De stad is dichtbij, maar voelt ver weg.

Dankzij de karakteristieke houten gevel, grote glaspartijen en het vele groen rondom straalt deze woning rust en ruimte uit. Geniet van ruimte, licht én een schitterend uitzicht.

BEGANE GROND
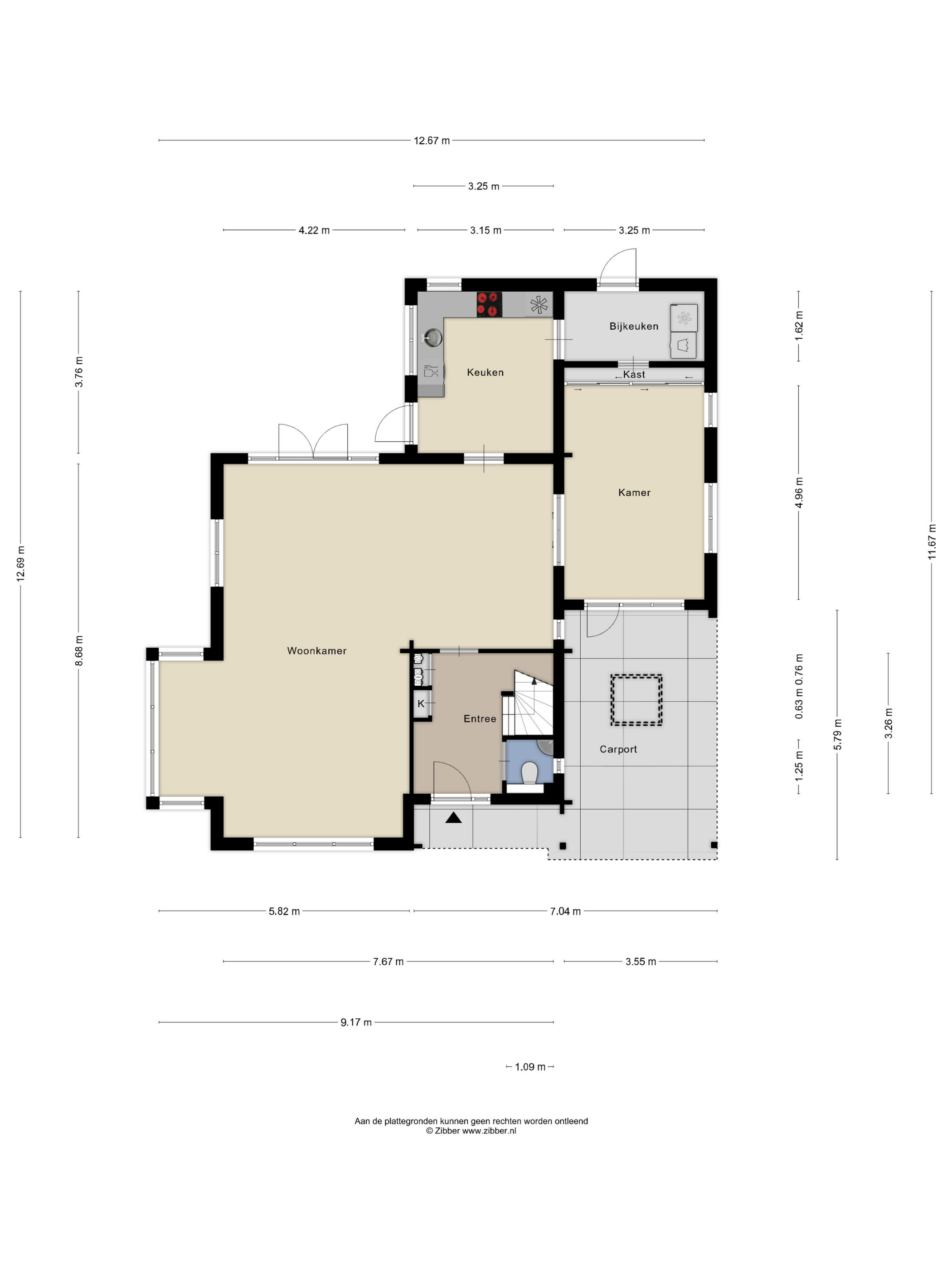
ENTREE
De ruime hal verwelkomt je met een luxe marmeren tegelvloer en strak gestucte wanden. Hier vind je de meterkast, trap naar boven én een modern toilet met raam voor ventilatie, stijlvol doorgelegd in dezelfde marmeren tegel. Het hele huis is uitgerust met een geavanceerd beveiligingssysteem, inclusief alarminstallatie, voor een veilig en zorgeloos gevoel.

WOONKAMER
Zodra je binnenkomt in de woonkamer valt het licht meteen op. Grote ramen aan voor- en achterzijde halen buiten naar binnen. De erker aan de zijkant biedt een knusse plek voor een lees- of zithoek, terwijl de airco zorgt voor een aangenaam binnenklimaat in elk seizoen.

Aan de zijkant vind je een aparte werk-/hobbyruimte met schuifdeuren, inbouwkasten én openslaande deuren naar de oprit. Ideaal als thuiskantoor, speelruimte of extra slaapkamer. Vanuit de woonkamer loop je zó het terras op en geniet je van een heerlijke kop koffie in de zon, de rust én je eigen achtertuin.

KEUKEN
In het verlengde van de woonkamer ligt de sfeervolle keuken, met zicht op de tuin. Zet de deuren open en laat de natuur binnenstromen! De keuken is afgewerkt met een natuurstenen blad en is uitgerust met een inductiekookplaat, combi-oven/magnetron, koelkast, vriezer, recent vernieuwde vaatwasser, afzuigkap en spoelbak.
De marmeren tegelvloer loopt stijlvol door naar de praktische bijkeuken, waar je extra kastruimte en aansluitingen voor wasapparatuur vindt. Hier stap je eenvoudig achterom naar binnen via de houten deur.

EERSTE VERDIEPING
OVERLOOP
Boven is het warm en huiselijk, met tapijt op de vloer en grof gestucte wanden. Via de overloop bereik je drie slaapkamers, een badkamer, een separaat toilet en de trap naar zolder.

SLAAPKAMER 1
Word wakker met uitzicht over je eigen tuin. De grote ramen zorgen voor een prachtig groen decor én veel licht.

SLAAPKAMER 2 (MASTERBEDROOM)
Deze royale kamer is voorzien van maar liefst drie ramen en airconditioning. Ruimte en comfort komen hier samen voor een goede nachtrust.

SLAAPKAMER 3
Lichte kamer met grote raampartijen en een vaste kastenwand, perfect als kinderkamer, logeerkamer of thuiskantoor.

BADKAMER
De natuurstenen vloertegels geven de ruimte een luxe uitstraling, terwijl het hoekbad uitnodigt tot lange, ontspannende badmomenten. Even snel douchen? Dat kan in de praktische douchecabine. Verder vind je hier een stijlvol wastafelmeubel, een designradiator én een raam dat zorgt voor natuurlijke ventilatie én daglicht

SEPARAAT TOILET
In dezelfde stijlvolle afwerking als de badkamer, met inbouwcloset en fonteintje.

TWEEDE VERDIEPING
De zolderverdieping is nu een open ruimte, maar barst van de mogelijkheden. Wil je een extra slaapkamer, een studio, een logeerkamer of gewoon heel veel opbergruimte? Het kan hier allemaal. De cv-installatie en het ventilatiesysteem zijn keurig weggewerkt. En als duurzame bonus is de woning voorzien van maar liefst 29 zonnepanelen, goed voor het milieu én je energierekening.

BUITENRUIMTE
ACHTERTUIN
De achtertuin is werkelijk een plaatje. Gelegen op het zuiden, omringd door volgroeide bomen en geurige planten, vormt deze tuin een plek van rust en privacy. Het ritselen van bladeren en het vrolijke gezang van vogels.

Of je nu wil genieten van een goed boek in de loungehoek, een zomeravond wilt doorbrengen met vrienden onder de sterrenhemel, of de vijver even rustig wil bekijken, deze tuin biedt het allemaal. En dankzij het automatische sproeisysteem blijft alles moeiteloos in topconditie.

Aan de zijkant van de tuin staat een berging waar je fietsen, gereedschap of tuinmeubels eenvoudig kwijt kunt. Alles is tot in de puntjes verzorgd.

VOORTUIN
Ook de voortuin sluit perfect aan bij het groene karakter van de woning.
Je parkeert gemakkelijk 2-3 auto's op je eigen terrein, onder de stijlvolle carport met lichtstraat. Heb je een elektrische auto? Die laad je gewoon thuis op, via de aanwezige laadpaal, super praktisch.

OMGEVING
Wonen aan de Hazenloop betekent elke dag wakker worden met het gevoel van vakantie. Deze groene, rustige wijk voelt als buitenaf, maar ligt op nog geen kwartier fietsen van hartje Eindhoven.

Binnen vijf minuten ben je bij supermarkten, basisscholen, sportverenigingen of de dichtstbijzijnde bushalte. En voor ontspanning loop je de straat uit: wandel zó de Stratumse Heide in, een beschermd natuurgebied waar je eindeloos kunt wandelen, hardlopen of gewoon even tot rust komt. Daarnaast ben je binnen 10 minuten op de High Tech Campus.

Kortom: dit is een plek waar je écht thuiskomt, met de natuur als buur en de stad binnen handbereik.

DE PLUSPUNTEN OP EEN RIJ:
* Gelegen aan de rand van het natuurgebied Stratumse Heide, wandel zó het bos in
* Lichte woonkamer met grote raampartijen én een extra multifunctionele kamer op de begane grond
* Drie comfortabele slaapkamers, een stijlvolle badkamer en een ruime, veelzijdige zolder
* Diepe en groene achtertuin op het zuiden met volop rust, privacy en zon
* Voorzien van carport, laadpaal én maar liefst 28 zonnepanelen
* Gelegen in een rustige, groene wijk met scholen, winkels en het centrum van Eindhoven op korte afstand

Heb je vragen, of wil je even binnen kijken??

Neem vrijblijvend contact met ons op
+31-40-2444073
Deze woning delen

Kenmerken

Aanvaarding

Vraagprijs
€ 1.200.000,00
Status
Verkocht
Aanvaarding
In overleg

Bouw

Woonhuistype
Vrijstaande woning
Bouwvorm
Bestaande bouw
Bouwjaar
2007
Onderhoudswaardering binnen
Goed tot uitstekend
Onderhoudswaardering buiten
Goed tot uitstekend
Ligging
Aan bosrand, In woonwijk, In bosrijke omgeving

Indeling

Woonoppervlakte
181 m²
Perceel oppervlakte
1.035 m²
Inhoud
672 m³
Kamers
6
Slaapkamers
3
Badkamers
1

Energie

Energieklasse
A
Isolatie
Volledig geïsoleerd, HR glas
Verwarming
CV-ketel

Buitenruimte

Tuintypes
Tuin rondom

Garage

Garagesoort
Geen garage

Video's

Plattegronden

Map 1
Map 2
Map 3
Map 4
Map 5

Meer informatie

Wilt u meer informatie over Hazenloop 29, EINDHOVEN? Laat dan hier uw email adres achter zodat wij u kunnen informeren.

* We respecteren uw privacy en sturen alleen relevante informatie.